This Laurel Canyon Cottage Was Cramped and Dark. Now It’s a Haven of Light and Space.
Los Angeles architecture firm Assembledge had a vision for this Laurel Canyon cottage that preserved the original structure—no tear-down required.
Courtesy of Laure Joliet
Architect David Thompson of Assembledge in Los Angeles designed a two-story addition that somehow made this canyon lot feel larger.
Written byChristine Lennon
April 28, 2021
Share this story
We only recommend things we love. If you buy something through our site, we might earn a commission.
Laurel Canyon is one of those storied L.A. neighborhoods that you may think you know everything about. But local architect David Thompson of Assembledge, who re-designed this family home, loves the area for reasons that have nothing to do with Joni Mitchell or Jim Morrison.
“The Wonderland Park Avenue community in Laurel Canyon, where this house is located, was developed around these ideals of integration, tolerance, community, and progressive politics,” Thompson explains. “Garrett Eckbo created the master plan for the community. You couldn’t sell a house to Black or Asian people in certain neighborhoods, and this community was pushing the message of inclusion. It’s neat ground for this house to stand on.”
When tasked with the job of updating a 1956 single-story house, which was largely untouched except for updates to the kitchen and bathrooms, Thompson made it a priority to keep the original structure semi-intact. The grounding principles for this project: Add lots of glass, and create an indoor/outdoor living experience that felt more expansive, not closed in by the surrounding trees and hillside.
Before: The view of the original footprint from the backyard.
Courtesy of Assembledge
The house was kind of divided into two sections, Thompson explains. One area for the family bedrooms, and another for the kitchen, living, and dining space. They left the façade and the floor plan of the left side of the house, which is where the children’s bedrooms are located, intact. But the other side was completely transformed by adding massive glass sliders, re-working the kitchen, and creating a primary bedroom, bath, and sitting area on the second floor.
In this photo, you can see where the original roofline and the new addition meet.
Courtesy of Laure Joliet
A view of the open-concept living room and kitchen
Courtesy of Laure Joliet
Large square ceramic tiles have the feel of cement, and help to unify the indoor and outdoor living spaces. And a skylight that runs through the connection between the old and new areas of the house adds an interesting architectural detail, and space for the sun to break through.
Before: The kitchen was functional, but needed some major attention.
Courtesy of Assembledge
White oak custom cabinets and Caesarstone countertops in the re-built kitchen.
Courtesy of Laure Joliet
By adding skylights and large windows, Thompson filled the house with light and a real sense of flow between the rooms. From the front of the house, you can look into a window and see all the way through to the backyard and pool area.
The family room now opens to the pool deck, removing the barrier between inside and outside spaces.
Laure Joliet
Thompson allowed for some of the red cedar siding to peek into the interior, which you can see in the kitchen and dining room. The fireplace in the living room was refinished with slate gray Venetian plaster. And plenty of built-ins throughout the house give it a streamlined, unfussy look. A first floor powder room designed by Susan Mitnick uses a stunning piece of dark marble as a countertop, and sculptural vertical raw brass sconces.
A veined, black marble counter and brass fixtures make a big impact in a powder room.
Laure Joliet
The real focal point of the remodel is the suite above the garage, where a large shelving-lined sitting area is filled with comfortable cushions and pillows. To look out the windows, you’d think you were on a hilltop somewhere far away from the heart of Los Angeles.
A sitting room with a Clate Grunden pendant, Blend interiors table, and a built-in sectional is part of a large primary bedroom suite.
Courtesy of Laure Joliet
“It’s supposed to feel like a treehouse,” Thompson says. “When you look out the window from the bedroom and the sitting area, you’re surrounded by eucalyptus.”
A Mehraban rug and an antique chaise by Pool Kjaeholm in the primary bedroom.
Courtesy of Laure Joliet
Designer Vanessa Alexander, a long-time friend of the homeowners, furnished the house in a palette of deep neutrals, with vintage and antique chairs, custom sofas, and rugs from Mehraban in Los Angeles.
In the dining room, there’s a peek of cedar siding from the exterior. Pendant Bec Britain.
Courtesy of Laure Joliet
The home owners’ impressive art collection, which includes works by Ed Moses and Ramsey Dau, adds visual interest to otherwise white walls.
A plaster fireplace in deep gray, vintage leather chairs, and white cocktail table give the formal living room a tonal sophistication. Art by Christina Craemer.
Courtesy of Laure Joliet
The result is what Thompson describes as a “seamless blur” between indoor outdoor living, and a sophisticated but comfortable family home, tucked away in the canyon woodlands.
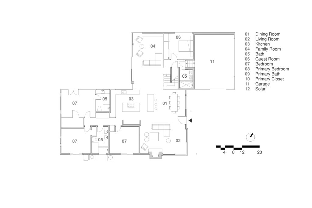
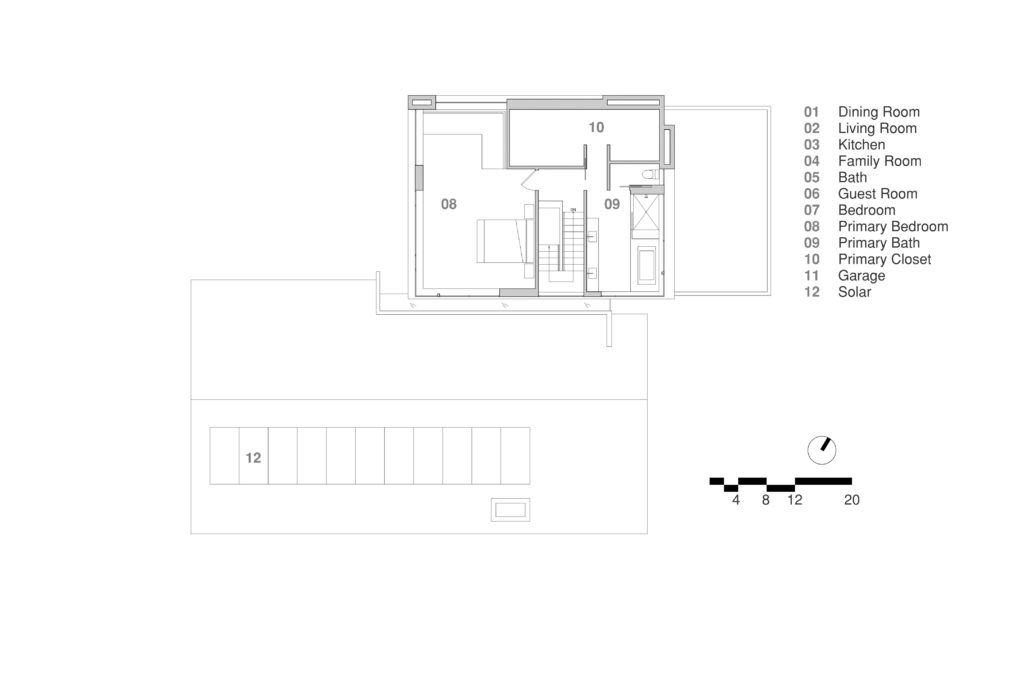
The Plans
The first floor layout, re-imagined by Thompson at Assembledge
Courtesy of Assembledge
A second floor adds both a view and a roomy primary bedroom.
Courtesy of Assembledge
Get the Look
1 of 6Courtesy of Allied Makers T2 Sconce
An Elongated Brass Sconce Gets Noticed in a Powder Room
Allied Maker Brass T2 Sconce, $1250
2 of 6Courtesy of Design Milk
Simple, Graphic Rugs Make a Big Impact
Design Milk Sand Rug, $185
3 of 6Courtesy of Tenira pillows at Goodee World
Try Creating Complementary Groups of Striped and Neutral Pillows
Goodee Square Cushion Off White and Brown, $119
4 of 6Courtesy of CB2
A Sleek Chaise Makes a Statement, Inside or Out
CB2 Bizerte Outdoor Chaise Lounge, $1299
5 of 6Courtesy of CB2
Leather Accents Add Organic Texture to Simple Interiors