It makes a big difference.

Camille Styles Great Room Kitchen Area

Rendering by Burdge Architects

Join guest editor Camille Styles as she and her family transform a 1950s Malibu beach bungalow into their dream retreat—and in the process, discover a slower, more intentional way of living, rooted in the beauty of the West. It’s all part of our journey to the Sunset 2023 Idea House, a home that displays the latest innovations in Western home design.

Though the gut renovation of our Malibu beach house is a massive undertaking, we’re actually adding just 1,000 square feet to the existing foundation. Not only does this save on budget, but it also simplifies the permitting process (no small matter when you’re building near the California coast.) Plus, maintaining the house’s existing footprint allows us to hold onto the charming surf shack vibes that we fell in love with in the first place.

When I initially heard “1,000 square feet of added space,” I mentally divvied it up into various parts of the house: extending the primary suite, maybe adding on a new bathroom and closet, expanding the kitchen. That type of thing. So, when I first saw our architect Doug Burdge’s draft of our renovation plans, I was surprised that he’d put all of our additional square footage into one space, which he dubbed “The Great Room.” Upon greater examination, it turned out to be one giant open kitchen with a fireplace on one end. Huh.

Though my initial response was surprise (“Are we sure that’s the best use of space?”), Doug’s plan revealed what I consider to be a very modern approach to architecture—designing with a client’s needs and personal values first, even if that means throwing out a few expectations and standard ways of doing things in the process.

While yes, some people desire a house with many rooms and private spaces, our family’s top priority is to cultivate an atmosphere for connection, gathering, and making others feel welcome. And what better way to foster that sense of togetherness than through one big open room that’s made for entertaining? The more I looked through my inspiration photos and envisioned the family holidays and dinners with friends in this house, the more excited I got about the space.

So, let’s take a look at the house’s current kitchen, to give you an idea of the less-than-ideal conditions we’re working with (and why we’re basically starting from scratch with it.)

The original kitchen wasn’t ideal for entertaining.

Courtesy of Camille Styles

The current bungalow kitchen is wedged into a corner of the back of the house. When I’m cooking or doing dishes, my back is turned to anyone else in the room. Overall it has a closed-off feeling that’s not conducive to my style of cooking, which is all about casually conversing with Adam or my kids while I chop.

I have a long-held dream of a massive kitchen window above the sink that floods the room with sunshine. It’s a design element I’ve never had in any of the houses I’ve lived in previously, hence my “Dream Kitchen” Pinterest board covered in huge kitchen windows. When we kicked off this project, this was a key feature on the wishlist that I handed over to our architect.

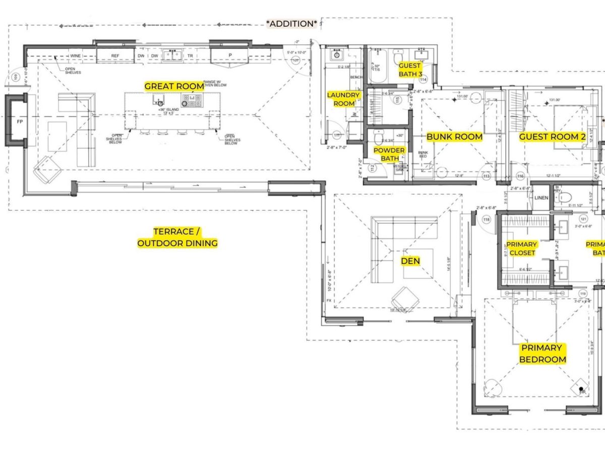
And now, for the new Great Room/Kitchen addition—I’ll lead with the visuals to give you an idea of what we’re envisioning, and then I’ll explain the details. Here are the new floor plans.

Floor plan by Burdge Architects

Doesn’t it feel open and spacious, like a breath of fresh air and an absolute dream for cooking? I can’t wait until the day when I’m prepping for dinner with the music turned up, glass of wine in hand, and ocean breezes blowing in through the open doors.

Key Elements That We’ve Carved out for This Space

Oversized kitchen island. The Great Room’s focal point is a 13-foot kitchen island that at first blush feels almost too big, but upon further investigation, is scaled just right in context with the size of this room. This is a hardworking island that will more than earn its keep—not only will it be the central gathering place for kitchen prep and casual dining, but it will also house the cooktop and main sink, plus tons of storage. The interior side of the island will have deep drawers where we’ll keep everything from plates and bowls to flatware. The side facing outward will have open shelving for cookbooks and display objects on the corners with space for barstools in the center. Since the rest of the kitchen has minimal cabinetry, we’re relying on this island to hold a lot.

Fireplace to anchor the room. Since we’re not adding a designated “living room” to the house, we’ve carved out one end of the great room as the area where we’ll cozy up with a glass of wine and a good book. And there’s nothing like a fireplace to welcome everyone to kick up their feet—plus it’s a design element that will provide clear differentiation between the “cooking” part of the room and the “relaxing” part of the room, even though they won’t be separated by an actual wall. We’re planning to position a round table surrounded by low-slung chairs in front of the fire—an inviting spot for a cozy dinner for two, or a game of chess with my son.

Rendering by Burdge Architects

Wall of doors that fully opens. I think that every house should have one element that makes a major statement. It’s the design moment that, if guests remember little else, at least they won’t forget it. In our beach house project, the 30-foot wall of pocket doors that open straight to the outside is, without a doubt, that statement. Since one of the reasons we’re drawn to Southern California is (no surprise) the ability to spend 12 months of the year outside, one of our top priorities is creating a natural flow between the indoors and out. 

Plus, this seamless transition enables us to turn the covered terrace into an outdoor dining room that will feel like part of the great room space. No, it’s not a conventional approach to a dining room, but for a family that loves to eat as many meals outdoors as possible, it works.

Beverage station. I wanted to design the more “lounge-y” side of the great room (near the fireplace) in a way that flowed with the kitchen, but didn’t feel like you were still in the kitchen. However, since we traded in most of our upper cabinetry for a massive kitchen window (more on that below), we needed all the extra storage we could get. So, I designated the wall that runs perpendicular to the fireplace as a bar and beverage station. It will hold practical items like wine storage, coffeemaker, mugs, and glassware. And it will also feature more design-forward elements, like our vintage turntable and sculptural objects on the open shelving, to keep it from feeling too much like part of the kitchen. 

And last but not least… I finally get my big kitchen window! As mentioned, I’ve long lusted after a statement kitchen window that floods the space with sunshine. And not only will our 10-foot wide x 6-foot high window let in tons of natural light, but it is also a fully functioning slider that opens up to the back patio. There will be a counter on the exterior side that’s perfect for serving drinks and passing food to throw on the grill.

One design decision I’m still contemplating is what type of tree to plant just outside this window. As the visual focal point to this room, it’s as crucial to the design elements as any interior piece of art, so I’m approaching it with the same level of thoughtfulness. As of now, my top contenders are either a gnarly, twisting ornamental olive tree, or a lush citrus tree—just imagine being able to open up the window and pluck a ripe orange right off the branches! It’s hard to picture anything dreamier, but I’ll let you know where we end up.

Read the Current Issue Here!

Get one year of Sunset—and all kinds of bonuses—for just $29.95. Subscribe now!